NEWS
STUDIO
G棟
A棟
1st
2st
スタジオ棟
MEDIA SHIP棟
VIRTUAL PRODUCTION
ART
制作実績
大道具
塗装仕上げ
POST PRODUCTION
EDIT
SOUND
TRANSFER
PROJECTION
PRODUCTION
WORKS
映画
ドラマ
CM
MV
配信
その他
RECRUIT
仕事を知る
人を知る
新卒・中途情報を見る
アルバイト情報を見る
採用情報SNS
採用情報SNS
会社紹介SNS
ABOUT
会社概要
沿革
主な映画作品
ACCESS
お問い合わせ
プライバシーポリシー
NEWS
STUDIO
TOP
G棟
A棟
1st
2st
スタジオ棟
MEDIA SHIP棟
VIRTUAL PRODUCTION
ART
TOP
制作実績
大道具
塗装仕上げ
POST PRODUCTION
TOP
EDIT
SOUND
TRANSFER
PROJECTION
PRODUCTION
WORKS
TOP
映画
ドラマ
CM
MV
配信
その他
RECRUIT
TOP
仕事を知る
人を知る
新卒・中途情報を見る
アルバイト情報を見る
採用情報SNS
採用情報SNS
会社紹介SNS
ABOUT
TOP
会社概要
沿革
主な映画作品
ACCESS
お問い合わせ
プライバシーポリシー
STUDIO
角川大映スタジオの撮影所
G棟
A棟
1st
2st
スタジオ棟
MEDIA SHIP棟
TOP
STUDIO
MEDIA SHIP棟
STUDIO S1
STUDIO S1
搬入口 w2.3×h3.0m
ライトバトン
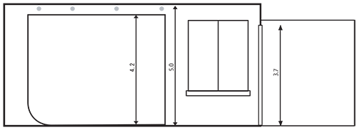
W×L×H
6×9.7(9.3)×5m
面積
60m²(18坪)
床
正面Rホリゾント
ホリゾント
白
電力
60kw(200v)、50kw(100v)
同録
不可
水もの撮影
不可
真俯瞰撮影
不可
料理撮影
可
付帯施設
給湯室・冷蔵庫・冷暖房・機材用リフト
試写やプレゼンテーションにも御利用頂けます。
備考
ライトバトン・美術バトン設置
スタジオ料金表は営業直通(042-482-2520)までご連絡下さい。
見取り図
平面図
立面図
図面ダウンロード
キャットウォーク表示:
ON
OFF
キャットウォーク入り図面をダウンロード(A4)
平面図をダウンロード(A4)
MEDIA SHIP棟 のスタジオ関連施設
STUDIO S1
STUDIO S2
控え室1
控え室2
控え室3
控え室4
控え室5
控え室6
控え室7
控え室8
控え室9
控え室10
控え室11
控え室12
控え室13
控え室14
メイクルーム
ゲストミーティングルーム
スタッフルームC1
スタッフルームC2
スタッフルームC3
MEDIA SHIP棟 TOP